Hello
Design
Art
Live
About
Shop
Hello
Design
Art
Live
About
Shop
HAGIT HOLLANDER

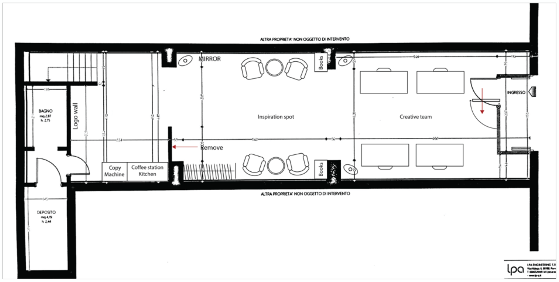
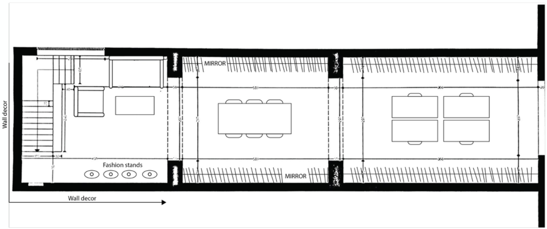
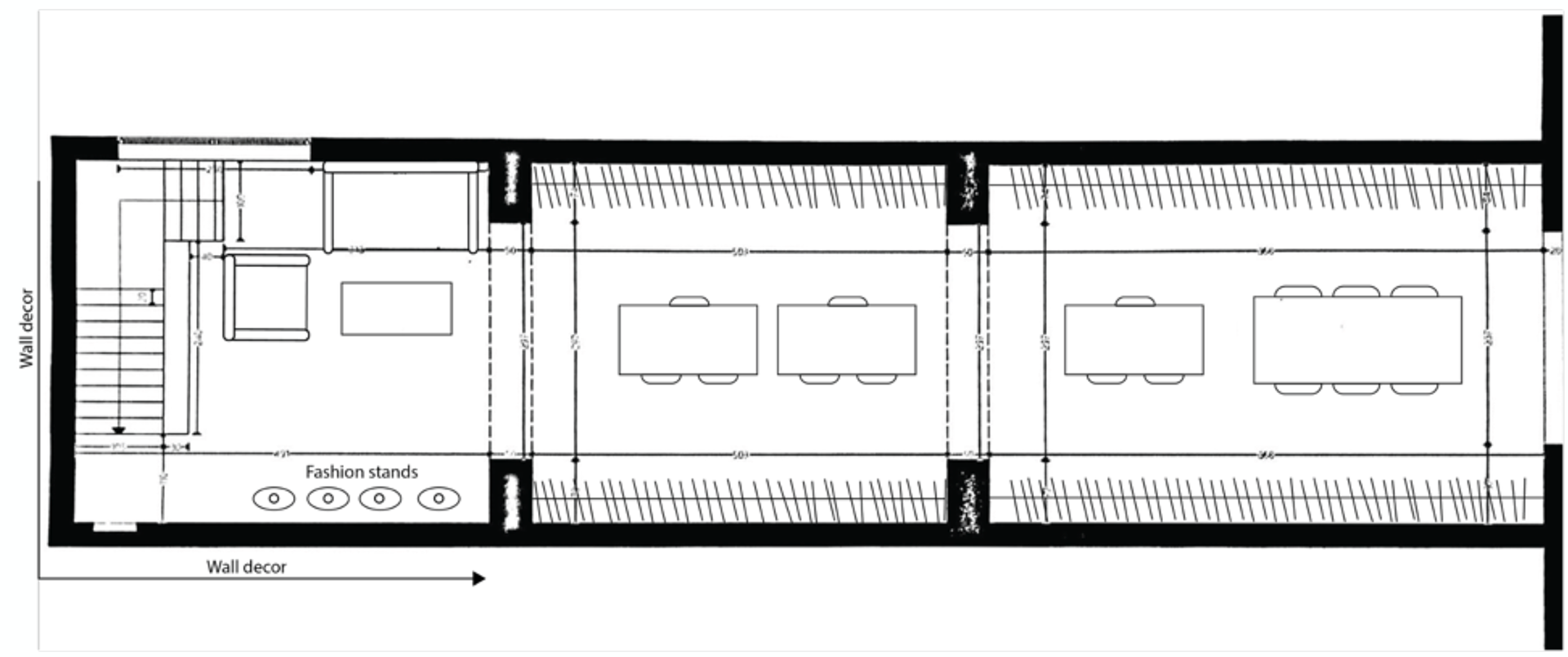
OFFICE ANALYSIS, ROME Commercial office space analysis & Feng Shui

You may also like

Dizingoff St 199, Tel Aviv
Boutique Building, Tel Aviv
Boutique Building, Tel Aviv
Israel Museum, Jerusalem
Reality Fund Office Berlin, Germany
Jewish community rally, Rome, Italy
Stricker St 48, Tel Aviv
Neswell Group, Tel Aviv
Auschwitz-Birkenau Museum, Poland
Boutique Building, Tel Aviv
↑Back to Top
© 2025 Hagit Hollander-Shimoni